全国咨询热线:0371-64030111

甘肃甘南州玛曲县传力接头-甘肃甘南州玛曲县传力接头生产厂家哪家好

发布时间:07-30浏览次数:440次所属栏目:传力接头编辑:梦薇

导读: 甘肃甘南州玛曲县传力接头也称伸缩节、膨胀节、补偿器、传力接头。传力接头在一定范围内可轴向伸缩,也能在一定的角度内克服管道对接不同轴向而产生的偏移,能极大的方便阀门

甘肃甘南州玛曲县传力接头也称伸缩节、膨胀节补偿器、传力接头。传力接头在一定范围内可轴向伸缩,也能在一定的角度内克服管道对接不同轴向而产生的偏移,能极大的方便阀门管道的安装与拆卸,在管道允许伸缩量中可以自由伸缩,一旦越过其大伸缩量就起到限位,确保管道的安全运行。甘肃甘南州玛曲县传力接头主要保障管道安全运行,具有以下作用:补偿吸收管道的轴向位移;吸收设备振动,减少设备振动对管道的影响;吸收地震、地陷对管道的变形量。
常见的甘肃甘南州玛曲县传力接头有两种连接方式,一种是法兰连接,另一种是焊接,这两种连接方式不同,对于后期的使用效果也不同,主要的还是根据管道线路的实际需要,如果该管段在运行后期进行定期维护的情况下就需要采用法兰式连接,法兰式连接具有方便后期工程的拆装与维护,甘肃甘南州玛曲县传力接头安装时先要调整好产品两端或法兰的安装长度,对角均匀拧紧压盖螺母,再调整好限位螺母,这样就能让管道在伸缩量范围内可以自由伸缩,锁定产品伸缩量,确保管道的安全运行。
对于一些长期不需要进行维护的线路则可以选择焊接式连接,这种连接方式具有一次性安装,终生免维护。但是需要说明的是,甘肃甘南州玛曲县传力接头在焊接过程中一定要注意在初次焊接完毕之后,需要将焊接区域的焊渣用铁棒敲击进行清除,直至露出金属光泽即可,再经过仔细检查,避免出现漏焊和虚焊的现象发生,这样才能够有效地确保产品的合格率。
甘肃甘南州玛曲县传力接头在管道中的主要作用是让管道在一定范围内的伸缩量中自由伸缩,确保管道的安全运行。安装时只需调整产品两端的法兰与法兰的连接长度,对角依次均匀拧紧压盖螺栓即可。798790百万文字论坛-798790论坛开奖历史记录-百万综合文字论文798790-798790百万文字论坛开奖结果-798790百万文字论坛资料特色-500608百万文字论坛浏览器安装-500505百万文字论坛资料转载管道专业生产传力接头,进口好的原料与设备,不错的人才与甘肃甘南州玛曲县钢制传力接头技术,产品质量过硬符合~标准,产品的每一步都经过了严格的检验与检测,专业致力管道行业二十余年,质量值得您的信赖。798790百万文字论坛-798790论坛开奖历史记录-百万综合文字论文798790-798790百万文字论坛开奖结果-798790百万文字论坛资料特色-500608百万文字论坛浏览器安装-500505百万文字论坛资料转载管道作为专业的传力接头生产厂家,该产品作为公司的名牌主打产品,一直畅销至今,本公司的生产技术一直在前于同行业,798790百万文字论坛-798790论坛开奖历史记录-百万综合文字论文798790-798790百万文字论坛开奖结果-798790百万文字论坛资料特色-500608百万文字论坛浏览器安装-500505百万文字论坛资料转载传力接头产品凭借优异的质量在国内外大型工程中多次中标,我公司传力接头产品在循环水管道上面使用取得很好的效果,在造船、给排水行业中使用效果明显。传力接头哪家好,选798790百万文字论坛-798790论坛开奖历史记录-百万综合文字论文798790-798790百万文字论坛开奖结果-798790百万文字论坛资料特色-500608百万文字论坛浏览器安装-500505百万文字论坛资料转载管道。798790百万文字论坛-798790论坛开奖历史记录-百万综合文字论文798790-798790百万文字论坛开奖结果-798790百万文字论坛资料特色-500608百万文字论坛浏览器安装-500505百万文字论坛资料转载管道凭借着良好的服务以及产品的高质量,为不同的管道线路的安稳运行保驾护航。

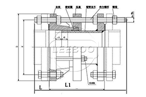
传力接头原理图

零部件材料展示

序号 名称 数量 材料
1 本体 1

QT400-15,Q235A,ZG230-450,20 

2 密封圈 1 NBR
3 压盖 1

QT400-15,Q235A,ZG230-450,20 

4 螺柱 n Q235A,35,1Cr8Ni9Ti
5 螺母 5n Q235A,20,1Cr8Ni9Ti

传力接头技术参数表格

公称通径 Nominal Diameter DN 小长度Minlength L 安装长度Installation L1 大长度Max Length L2 伸缩量 Compensation
40 170 190 210 40
50 180 200 220 40
65 180 200 220 50
80 190 220 240 60
100 190 220 240 70
125 190 225 260 70
150 210 250 290 80
200 220 260 300 80
250 235 275 315 90
300 235 280 325 90
350 250 295 340 90
400 260 305 350 90
450 260 305 350 90
500 270 315 360 90
600 280 330 380 100
700 300 350 400 100
800 330 380 430 100
900 330 380 430 100
1000 350 400 450 100
1200 350 400 450 100
1400 390 445 500 110
1600 420 470 520 110
1800 450 510 560 120
2000 450 510 570 120
2200 480 545 610 130
2400 500 570 640 140
2600 540 615 690 150
2800 580 660 740 160
3000 650 750 850 200


玛曲县隶属甘肃甘南藏族自治州,位于甘肃省甘南藏族自治州西南部,青藏高原东端,甘、青、川三省交界处,黄河不错弯曲部。地处东经100°45′45″~102°29′00″,北纬33°06′30″~34°30′15″之间,东北以西倾山为界与本州碌曲县接壤,东南与四川省阿坝藏族羌族自治州的若尔盖县、阿坝县为邻。玛曲县总面积是10190平方公里,总人口为5.49万(2011年),其中藏族占三分之二,平均海拔是3700米。玛曲古属羌族地区,公元663年吐蕃统一青藏高原后,才成为藏族的游牧之地。

主打产品HOT SALE PRODUCTS

查看更多

查看更多

查看更多

查看更多

304不锈钢波纹管

304不锈钢波纹管

金属软管具备了良好的柔软性、抗疲劳性、耐高压、耐高低温、耐蚀性等诸
查看更多

查看更多

查看更多

查看更多

CR型钢丝绳减振器

CR型钢丝绳减振器

钢丝绳隔振器是由钢丝绳绕成螺旋状并固定在沿螺母布置的两块金属板之间
免维护焊接套筒补偿器

免维护焊接套筒补偿器

免维护型套筒补偿器采用的是先将密封材料用压机模压成型,成型要求密度不
免维护法兰式双向套筒补偿器

免维护法兰式双向套筒补偿器

免维护套筒补偿器的内套筒与管道连接,采用高性能自压式动密封的原理与
免维护焊接旋转补偿器

免维护焊接旋转补偿器

免维护焊接旋转补偿器由封座外套、柔性石墨填料、螺母螺栓N个压簧组合
免维护法兰旋转补偿器

免维护法兰旋转补偿器

免维护旋转补偿器由封座外套、柔性石墨填料、螺母螺栓N个压簧组合、填
KWT 90度橡胶弯头

KWT 90度橡胶弯头

KWT型90度橡胶弯头系内胶层、增强层、外胶层模压硫化成型的橡胶弯球头
KYP 偏心异径橡胶接头

KYP 偏心异径橡胶接头

KYP偏心异径橡胶接头是在KXT橡胶接头的基础上改良的,可解决金属管道连接
人防穿墙密闭肋

人防穿墙密闭肋

穿墙管密闭肋又叫做穿墙套管,防水套管,墙体预埋管,防水套管分为刚性防水套
防护密闭套管F型

防护密闭套管F型

防密闭套管F型是一种主要用于五金管道的建筑预埋管件。防护密闭套管主
BE型橡胶避震器

BE型橡胶避震器

BE型橡胶避震器由金属与橡胶复合制成,金属表面全部包复橡胶,能防止金属锈
KYT-F 同心异径限位橡胶接头

KYT-F 同心异径限位橡胶接头

异径橡胶接头又称作弹力管道减震器、橡胶接头、橡胶软连接、橡胶膨胀节
KST-L 丝扣橡胶接头

KST-L 丝扣橡胶接头

KST-L丝扣橡胶接头又称多球丝扣可曲挠橡胶接头,是一种高弹性、高气密性,
KKT 卡箍式橡胶接头

KKT 卡箍式橡胶接头

卡箍式橡胶接头采用卡箍代替法兰盘和螺栓,使用时,可方便地将卡箍式橡胶接
KST 双球体橡胶接头

KST 双球体橡胶接头

KST型双球体橡胶接头采用多波设计增加了橡胶接头的长度、增加了补偿量
V型吊式弹簧减震器

V型吊式弹簧减震器

V型弹簧减震器由高强度的金属框架,螺栓组,弹簧及上下底部的弹簧橡胶垫组
法兰式鸭嘴阀

法兰式鸭嘴阀

橡胶法兰与阀身联成一体,安装极为方便。阀体采用全橡胶设计,不会引起淤
刚性防水套管(A型)

刚性防水套管(A型)

02S404刚性防水套管(A,B,C型)适用于管道穿墙处不承受管道振动和伸缩变形
柔性防水套管A型

柔性防水套管A型

柔性防水套管-A型又叫穿墙套管,穿墙管。柔性防水套管一般适用于管道穿过
JR型不锈钢金属软管

JR型不锈钢金属软管

JR型金属软管是现代工业设备连接管线中的重要组成部件。金属软管用作电
XB矩形风道纤维织物补偿器

XB矩形风道纤维织物补偿器

XB矩形风道纤维织物补偿器是由橡胶和纤维织物复合材料、钢置法兰、套筒
联系我们

全国统一销售热线:0371-64030111

咨询热线 0371-64030111 同微信 联系798790百万文字论坛-798790论坛开奖历史记录-百万综合文字论文798790-798790百万文字论坛开奖结果-798790百万文字论坛资料特色-500608百万文字论坛浏览器安装-500505百万文字论坛资料转载 免费获取 《解决方案以及报价》 798790百万文字论坛-798790论坛开奖历史记录-百万综合文字论文798790-798790百万文字论坛开奖结果-798790百万文字论坛资料特色-500608百万文字论坛浏览器安装-500505百万文字论坛资料转载管道QQ 在线咨询 798790百万文字论坛-798790论坛开奖历史记录-百万综合文字论文798790-798790百万文字论坛开奖结果-798790百万文字论坛资料特色-500608百万文字论坛浏览器安装-500505百万文字论坛资料转载管道微信 微信咨询 请您添加右侧号码,微信咨询798790百万文字论坛-798790论坛开奖历史记录-百万综合文字论文798790-798790百万文字论坛开奖结果-798790百万文字论坛资料特色-500608百万文字论坛浏览器安装-500505百万文字论坛资料转载管道